Enfield, London EN1

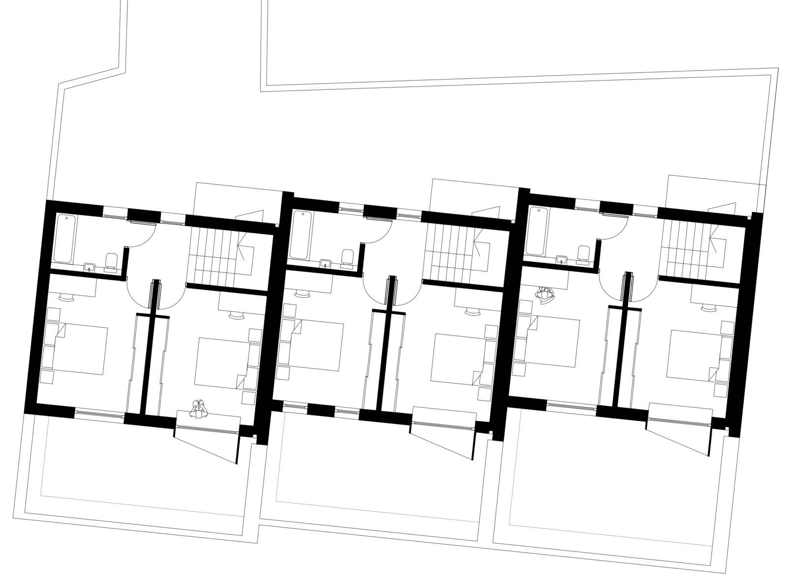
These contemporary mew homes activate an unused garage site constrained by it’s infill nature this project shows how small things can have a big impact. Having inherited this project site, plagued with numerous failed planning applications and several planning appeals by the client’s previous architects, we spent time researching the context, studying the character of the place, in particular the use of brickwork and vernacular detailing. Adhering to the local design standards and working with the existing transport infrastructure to push a sustainable development.

We relish a challenge and the brief from our client, a local developer, set us just that.

‘Transform a constrained garage site into several desirable homes’

This is what we have sought to provide and selling in under 10 days of being listed it seems that the brief was definitely fulfilled.

Project & Environmental Data

Project Info

  • Location: Enfield, London EN1
  • Image Credit: nu.ma

Environmental Data

  • Energy Efficiency
    1 2 3 4 5 6 7
  • Insulation
    1 2 3 4 5 6
  • Thermal Mass
    1 2 3 4
  • Airtightness
    1 2 3 4 5 6 7
  • Solar PV
    1
  • Embodied Carbon
    1
  • Heating/Hot Water
    Electric Gas Ground Source Air Source
  • Solar Thermal
    Yes No
  • Rain Water Harvest
    Yes No
  • Ventilation
    MVHR Natural
  • Energy Storage
    Yes No

Surprisingly it is often the sites which are the most challenging that lead to the most beautiful and simple solution as was the case in this constrained North London infill development.

We explored a range of concept ideas for our client looking at how the site could be maximised fiscally whilst still providing homes designed to meet the space standards outlined in the London Housing Design Guide.

It was important each of the three housing units had access to a private external space and a south facing external courtyard was included in the design.

We engaged in early dialogue with the Local Authority and were granted planning permission via delegated powers in record time. The scheme was applauded by Enfield Council as an exemplar of what can be achieved on a constrained site through great design and a collaborative approach.

We believe that quality architecture adds value, both emotional and financial. Our architecture enhances your sense of well-being, the value of which is difficult to quantify in monetary terms. Our design skill, knowledge and tenacity also add financial value as the benefit of realising quality design increases the value of a site and maximises your investment.

We believe that beauty is measurable and that even the most constrained project or site can be beautiful. Often, embracing constraints is a catalyst for inspirational resolutions. We respectfully celebrate the ‘question’, which has resulted in our reputation for bringing success to challenging and complex sites and project briefs.